Home
About
Projects
Product Development
Neumocam Aerochamber
Vivencia Cinerary Urns
Interiorism & Furniture
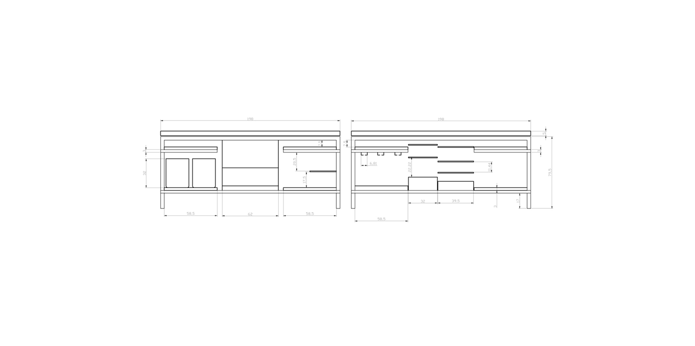
Meditation Bench. Valencia
Coffe Shop. Shanghai
Boutique Les Amies, Beijin Chine
Library Furniture, University of Valencia, Spain
Table. SKA.
Lamp. El Aleph.
Renovation. Bs As
Contact
Send
Imprimir
3 MediationBench
Untitled Detail